新圖集|24D303-4《消防水泵機械應急啟泵控制》上市

圖集編號:24D303-4
圖集名稱:消防水泵機械應急啟泵控制
主編單位:中國建筑西南設計研究院有限公司、中國建筑標準設計研究院有限公司
No.1 編制背景
國家建筑標準設計24D303-4《消防水泵機械應急啟泵控制》是基于國家標準《消防給水及消火栓系統技術規范》GB 50974-2014第11.0.12條:消防水泵控制柜應設置機械應急啟泵功能,并應保證在控制柜內的控制線路發生故障時由有管理權限的人員在緊急時啟動消防水泵。機械應急啟泵時,應確保消防水泵在報警后5.0min內正常工作。本條款對消防水泵機械應急啟泵的控制有強制性要求。另外工程建設全文強制性工程建設規范《消防設施通用規范》GB 55036-2022第3.0.12條第3款:消防水泵控制柜應具有機械應急啟泵功能,且機械應急啟泵時,消防水泵應能在接受火警后5min內進入正常運行狀態。本條款對消防水泵機械應急啟泵列入到技術法規中。
No.2 適用范圍
本圖集適用于民用與工業建筑內3/N/PE AC220V/380V 50Hz系統中消防水泵機械應急啟動的控制。
No.3 主要內容
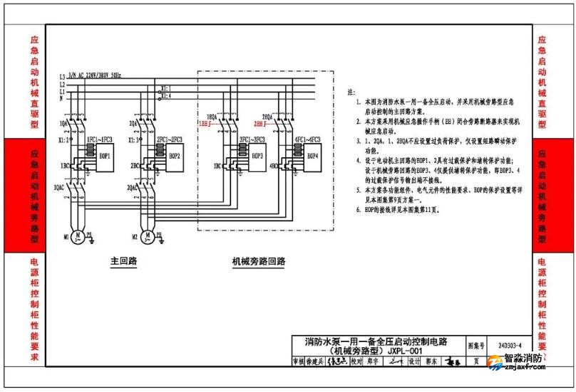
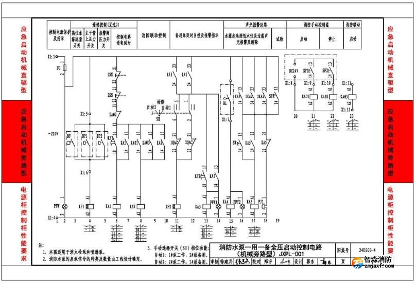
圖集提供消防水泵電動機一用一備全壓啟動、一用一備星-三角降壓啟動、兩用一備星-三角降壓啟動三種常用啟動類型的機械應急啟動控制,水泵電動機采用AC380V三相異步籠型電動機,最大容量為110kW。其他類型消防水泵機械應急啟動控制電路可根據國家建筑標準圖集D303-3《常用水泵控制電路圖》,并參考本圖集做相應修改。


No.4 機械應急啟動型式
機械直驅型:由機械應急操作手柄手動機械閉合消防水泵電動機主回路接觸器,完成機械應急啟動。包括采用機械應急操作手柄閉合普通的接觸器和采用專用的手動操作接觸器兩種類型。
機械旁路型:在消防水泵電動機主回路之外,設置一套旁路的開關裝置(本圖集推薦采用斷路器),由機械應急操作手柄手動機械閉合該開關裝置,完成機械應急啟動。
No.5 圖集亮點
① 圖集編制了控制柜相關方面的性能要求。包括控制柜、斷路器、過載保護器(EOP)、電子控制裝置(ECU)、機械應急啟泵控制、CPS、控制電路等性能要求及現場應急操作要求和緊急停機控制、斷電維護操作要求等。
② 圖集依據工程建設全文強制性工程建設規范《建筑電氣與智能化通用規范》GB 55024-2022,首次在國標圖集中介紹了采用過載保護器(EOP)解決堵轉保護的方案。
③ 圖集主回路采用分立元件和控制與保護開關電器(CPS)兩種,控制電路采用繼電器和電子控制裝置(ECU)兩種。共設計13種類型的控制電路圖。
No.6 圖集樣張




海灣安全技術有限公司主營:海灣消防報警系統銷售報價,消防工程改造,氣體滅火、電氣火災安裝,售后安裝維修,檢測,調試,海灣消防網址:http://m.feimu-hr.com/;海灣服務熱線:18910580194
推薦文章
- 海灣消防主機觀察控制器顯示:查看報警、故障及預警指示
- 海灣消防主機熱敏打印機故障解決辦法
- 海灣消防設備短路或接地故障導致控制器損壞之分析與防范
- 海灣消防通訊總線故障怎么解決
- 防火卷簾兩側的專用感溫火災探測器,跨越防火分區是否需設短路隔離器?
- 新規發布:學生宿舍必須安裝火災自動報警系統或具有聯網功能的獨立式火災探測器!
- 氣體探測器如何與防爆風機聯動?
- 關于“海灣消防放氣勿入指示燈故障,不能聯動閃亮”問題的分析與改進建議
- 室內消火栓動壓不達標該咋辦?
- 【圖解】海灣主機故障現象集合及維修處理經驗分享






蘇公網安備32058102002150號